Esta villa, elegantemente reformada, se encuentra en la exclusiva Hacienda de Valderrama, una comunidad cerrada junto al prestigioso Real Club Valderrama, sede de la Ryder Cup de 1997. Rodeada de alcornoques centenarios y jardines cuidadosamente mantenidos, la propiedad ofrece un entorno de absoluta privacidad con excelentes niveles de confort y calidad en todas sus instalaciones.
Distribuida en cuatro plantas, la villa cuenta con una superficie construida de 897 m² más 225 m² de terrazas. Dispone de cuatro amplias suites, un despacho o quinto dormitorio y un aseo de cortesía.
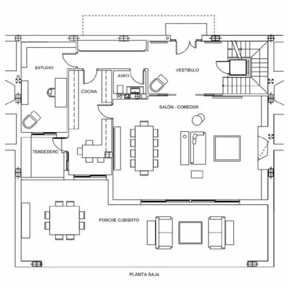
En la planta principal, un generoso espacio de concepto abierto integra el salón y el comedor, ambos muy luminosos gracias a los grandes ventanales que se abren a las terrazas y al jardín. La cocina de diseño Arclinea, acabada en roble fósil y equipada con electrodomésticos Gaggenau serie 400, combina funcionalidad con la elegancia de la artesanía italiana.
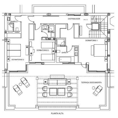
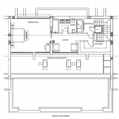
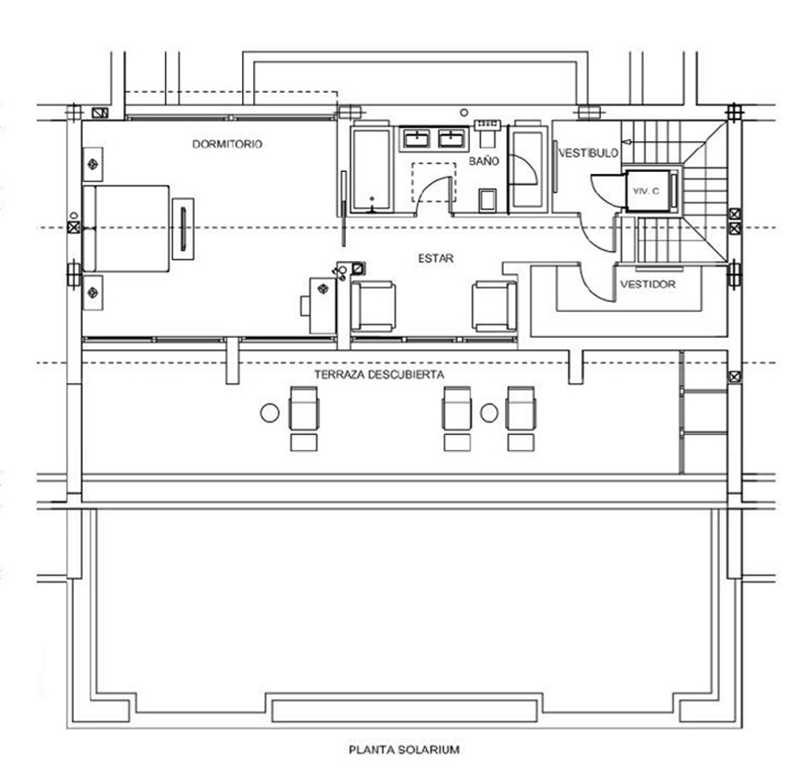
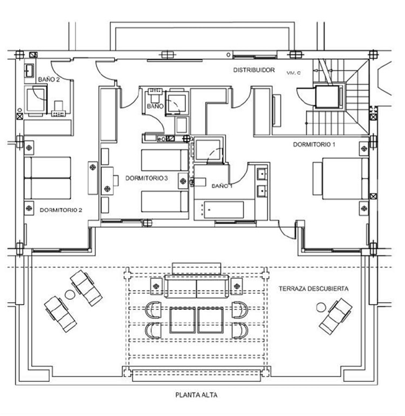
La primera planta alberga tres suites de invitados, todas con acceso a una amplia terraza orientada al sur que aporta abundante luz natural. La planta superior está dedicada íntegramente a la suite principal, que cuenta con un lujoso cuarto de baño, un impresionante vestidor Uecko de 36 m² y un solárium privado con vistas al entorno natural.
El nivel inferior está concebido como una completa zona de bienestar y ocio: gimnasio de última generación equipado con Technogym, bodega Arclinea, cine en casa con pantalla de 99 pulgadas y zona de juegos con billar, dardos y ping-pong. En esta planta se encuentra también una cocina de apoyo totalmente equipada y una zona de lavandería con electrodomésticos Miele.
Cada detalle ha sido cuidadosamente seleccionado, con materiales y acabados de primera calidad: mamparas de cristal Rimadesio, mobiliario de Olivieri y Fendi Casa, iluminación de Brokis y Bover, y cortinas de lino Yutes, creando una atmósfera de sofisticación discreta.
La comunidad ofrece seguridad 24 horas, servicio de conserjería, dos amplias piscinas comunitarias y jardines perfectamente cuidados. Su ubicación, a pocos minutos de la Marina de Sotogrande, los clubes de playa, los campos de polo y el Sotogrande International School, la convierte en una opción ideal para quienes buscan calidad, tranquilidad y comodidad en un entorno privilegiado.







